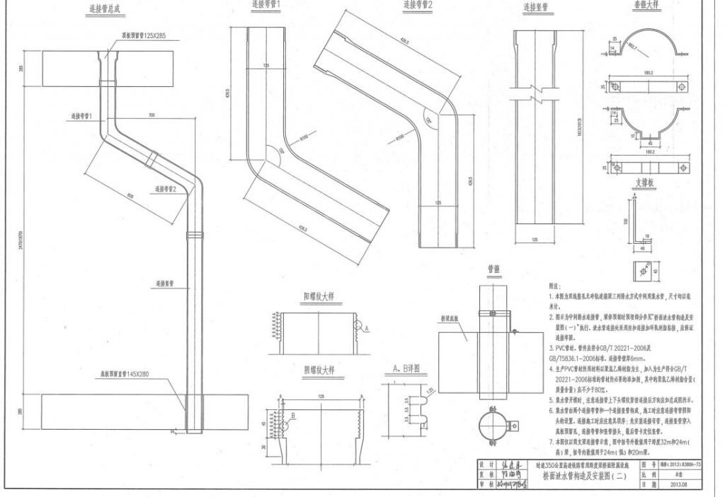
高鐵橋梁橋面泄水管平面構造及安裝圖
圖中內容中所提高鐵橋面泄水管均采用125直徑PVC材質,平面構造圖總共包括橋梁泄水管連接管總成、連接彎管1、連接彎管2、連接豎管、管箍及套箍大樣等,主要服務于時速350公里高速鐵路常用跨度梁橋面附屬設施,圖號為:通橋(2013)8388A-73。

構造安裝圖頁面注釋:
1. 本圖為雙線整孔無咋軌道箱梁三列排水方式中間用集水管,尺寸均以毫米計算,所有管道均為PVC125泄水管。
2. 圖示為中間排水連接管,梁體預制時預埋部分參見“橋面泄水管構造及安裝圖(一)”執行,橋梁泄水管連接處采用絲扣鏈接加環氧樹脂粘接,應保證連接牢固。
3. 所有系列125橋面泄水管為PVC管材、管件應符合GB/T20221-2006及GB/T5836.1-2006標準,鏈接橋面泄水管壁厚為6MM。
4. 生產PVC橋面泄水管所用材料以聚氯乙烯樹脂為主,加入為生產符合GB/T20221-2006標準的管材所必要的添加劑,其中聚氯乙烯樹脂含量(質量含量)應不少于80%。
5. 集水管開模時,注意連接橋面泄水管上下頭螺紋緊密鏈接后方向應如總成圖所示,同時也需嚴格把控水泥制品模具開模精度,切勿造成預埋砼制品誤差過大。
6. 集水管由兩個橋梁連接泄水彎管和一個連接泄水豎管構成,施工時注意彎管陰陽頭的設置。鏈接施工時應注意其順序:先安裝連接泄水彎管,連接泄水豎管穿入底板預留孔,連接泄水彎管和豎管接頭,最后管箍管卡定位泄水豎管。
7. 本圖僅以筒支橋梁連接管示意,圖中括號外數值用于跨度32M和24M(高)梁,括號內數值用于24M(低)和20M梁。
提示:此高鐵專用橋梁橋面泄水管平面構造及安裝圖主要用于學習交流,切勿用于商業目的,否則后果自負,設計圖下載地址:
http://pan.baidu.com/s/1qYguYU4
請廣大客戶注意:
由于本公司各規格尺寸已有塑料模具數量已達3000種之多,所以如果您沒有在網站中找到合適的產品,可以查看麗臣塑業的電子畫冊,主要分為高鐵和市政專用!如果您希望以最短的時間內找到您想要的產品,請撥打麗臣熱線:0573-82606007
麗臣塑業主營產品:現澆塑料模板,六角護坡模具、高鐵水泥護欄模具、溝蓋板模具、路沿石模具、彩磚模具、井蓋模具等一系列水泥制品塑料、鋼模具及配套的機械設備配件等,如條紋磚條紋機、脫模機、高鐵護欄離心機、加料機等。


上一篇: 公路護坡塑料模具有哪些種類?
下一篇: 高鐵橋梁防護柵欄模具構造圖PDF下載














